11717 Garden Grove Blvd, Garden Grove
Welcome to your refreshed two-story home nestled within the desirable Garden Walk community in the heart of Garden Grove, offering comfort, convenience, and easy living in a location that truly delivers!

Featuring 3 spacious bedrooms and 2.5 bathrooms, this move-in ready residence is perfect for a small family or anyone looking for extra space and functionality.

Entering the home, you are greeted by a bright and inviting living area showcasing fresh interior paint, new laminate flooring throughout, and an open layout filled with natural light—perfect for everyday living and entertaining.

Just beyond the living space is a kitchen with ample cabinetry and countertop space, nice appliances, and a conveniently located laundry room, making daily routines effortless and efficient.


Off the kitchen is a nicely sized private outdoor space, perfect for relaxing, entertaining friends, or enjoying a morning cup of coffee.

Downstairs also includes a guest powder room, ideal for visitors and everyday convenience.

As you make your way upstairs, you’ll find three well-sized bedrooms, all featuring new flooring, updated light fixtures, and a clean, modern feel.


The primary suite offers a comfortable retreat complete with its own en-suite bathroom featuring a shower and updated finishes.


The home also includes a two-car detached garage, offering parking and storage space.

Additional highlights include new interior paint, light fixtures, flooring throughout, resurfaced hallway shower, central heating and air conditioning, a Nest thermostat, dual-pane windows throughout, and a newer water heater.

Only steps away, Village Green Park and playground offers a great space to walk, play with kids and pets, or just enjoy beautiful open space. Enjoy all the amenities the Garden Walk community has to offer, including a well-maintained pool and spa, creating a true resort-style living experience.

Conveniently located with easy access to the 22, 5, and 57 freeways, and just minutes from local dining, shopping, Downtown Garden Grove, Costco, Home Depot, and The Outlets at Orange. This home truly checks all the boxes.With many recent improvements, enjoy Southern California living at its finest.

Features & Highlights of 11717 Garden Grove Blvd
- Bedrooms: 3
- Baths: 2 ½ (½ Bath Downstairs)
- Home SqFt: 1,404
- Lot Size SqFt: 1,988(Approximately)
- Garage: 2 Car Detached
- Year Built: 1974
- Low Tax Rate
- HOA Dues: $515/Month (Garden Walk)
- Central Heating & AC
- Additional highlights include fresh interior paint, new laminate flooring throughout, dual-pane windows and sliding doors, a resurfaced shower, updated light fixtures, a newer water heater, central heating and air conditioning, and a Nest thermostat.
- Close to local schools, neighborhood parks, and everyday conveniences, with easy access to great dining, shopping, and entertainment at Downtown Garden Grove, The Outlets at Orange, and nearby shopping centers including Costco and Home Depot. Plus quick access to major freeways and everything Orange County has to offer!
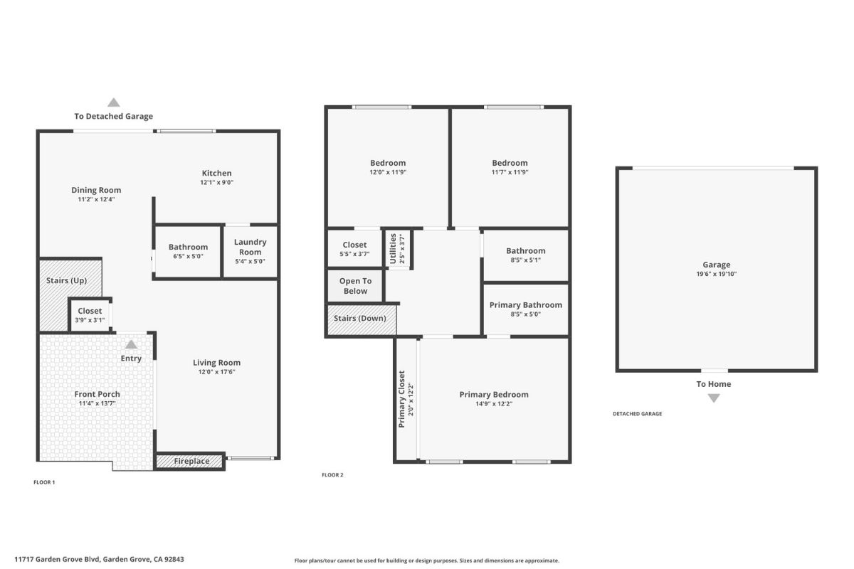
Floor Plans For 11717 Garden Grove Blvd, Garden Grove
Need to take a look at the floor plans to visualize how the home flows and for rough ideas of furniture, decor, and more? No problem! Check them out here!

Take a Walk Through Tour of 11717 Garden Grove Blvd
Did you know that you can take a virtual walk-through of most of our listings? See 11717 Garden Grove Blvd, Garden Grove just like you would if you came to the property to tour with this helpful 3D video tour experience!
Click Here To View This Home Virtually
Prefer to See the Video Version?
If you like to see our guided and narrated tours of homes, you are in luck! We have one of those for you to enjoy for 11717 Garden Grove Blvd, Garden Grove as well.
More Listings in Orange County
Here are some other current or sold listings of ours in Orange County. Check them out for reference points, an idea of what sells in the area, or for more great properties that are available.
- 28162 Via Cernuda, Mission Viejo
- 9958 Continental Drive, Huntington Beach
- 1824 Park Street, Huntington Beach
- 3008 Club House Circle, Costa Mesa
- 17906 Santa Mariana Street, Fountain Valley
- 8561 Pierre Drive, Huntington Beach
As always, we’re here to answer any questions you might have. You can drop a comment, give us a call at 949-413-6967, or drop us a line on any of our social media accounts. We are always happy to chat with you about buying, selling, property questions, and more!
About Danny Murphy & Associates
Danny is ranked in the top 1% of real estate agents across Orange County and the United States. With approximately $360 million in successfully closed transactions since 2009, Danny has delivered a 5-star customer experience to 400+ valued clients on properties ranging in value from $150,000 to $6,500,000.
