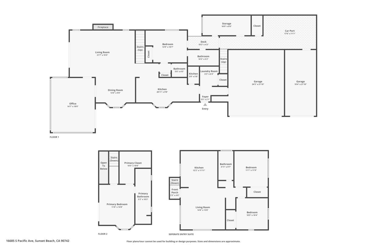
16685 S Pacific Ave, Sunset Beach

two level home's floor plan

Premier oceanfront cottage on the sand in Sunset Beach FOR LEASE! 2 bedroom, 2 1/2 baths, can sleep up to 8 comfortably. Available furnished at a higher seasonal rate, or unfurnished for up to 12 months! You won’t want to miss the AMAZING sunsets and Catalina views from this home!