9958 Continental Drive, Huntington Beach
Welcome to your FULLY remodeled beach close, two-story townhome with an open floor plan, a private back patio, & a LOW HOA, in one of the most highly sought after communities in Huntington Beach & some of the BEST schools in Southern California!

With 4 spacious bedrooms & 1 ½ baths, this home offers much needed space for a small family or people that need a little extra space. Entering the home, you are greeted by a bright & spacious family/dining room with laminate floors, a ½ bath, a white shaker style vanity with quartz counters & a well-appointed kitchen.

The nicely remodeled kitchen has plenty of quartz countertop space, backsplash, white shaker style cabinetry, matte black hardware, new stainless steel appliances & washer/dryer hookups.


Off the kitchen is a sliding door to a nicely sized private patio with recently painted concrete, perfect for enjoying family/friends, an evening BBQ or a morning cup of coffee! There is also direct access to your covered carport with storage.


As you make your way upstairs, there are 4 generously sized bedrooms, a nicely sized hallway bathroom with a re-glazed shower/tub, laminate floors & a white shaker style vanity area.



Other highlights include a new permitted 125 AMP electric panel, new dual pane windows & sliders, recessed lighting, scraped ceilings, freshly painted interior, new baseboards, laminate flooring, and central heating.

Only steps away, Bushard park & playground offers a great space to walk, play with kids and pets, or just enjoy beautiful open space.

Enjoy all the amenities the Huntington Continentals Community has to offer including 2 pools, 2 spas, 2 playgrounds, a basketball court, outdoor fitness, game & picnic tables, a reservable clubhouse for entertaining & plenty of beautifully landscaped green areas, perfect for walking pets and kids to play!


Close to exceptional schools, including Oka elementary, a short bike ride to world class beaches, & the fine dining, entertainment & shops at Main St & Pacific City! Walking distance to local stores such a Whole Foods,Target, Kohls, Starbucks, Stater Brothers, Sprouts & CVS!Also nearby is South Coast Plaza, Costco, HB Central Park, Library & Senior Center, HB Sports Complex, the Equestrian Center, Meadowlark Golf Course, the OC Fair Grounds & much more! Easy access to freeways & PCH. 4 Bedrooms in THIS neighborhood rarely come on the market!

Enjoy California coastal living at its finest all year long! Please call for pricing!
Features & Highlights of 9958 Continental Drive
- Bedrooms: 4
- Baths: 1 ½ (1/2 Bath Downstairs)
- Home SqFt: 1,254 (Approximately)
- Garage: 1 Detached Carport (Directly Behind Unit)
- Year Built: 1963
- Low Tax Rate
- HOA Dues: $325/Month (Huntington Continental)
- Central Heat
- Other Highlights Include A New Permitted 125 AMP Electric Panel, New Dual Pane Windows & Sliders, Recessed Lighting, Scraped Ceilings, Freshly Painted Interior, New Baseboards & Laminate Flooring.
- Close to Exceptional Schools, a Short Bike Ride to World Class Beaches, & the Fine Dining, Entertainment & Shops at Main St & Pacific City! Also Nearby is South Coast Plaza, Costco, HB Central Park, Library & Senior Center, HB Sports Complex, the Equestrian Center, Meadowlark Golf Course, the OC Fair Grounds & Much More!
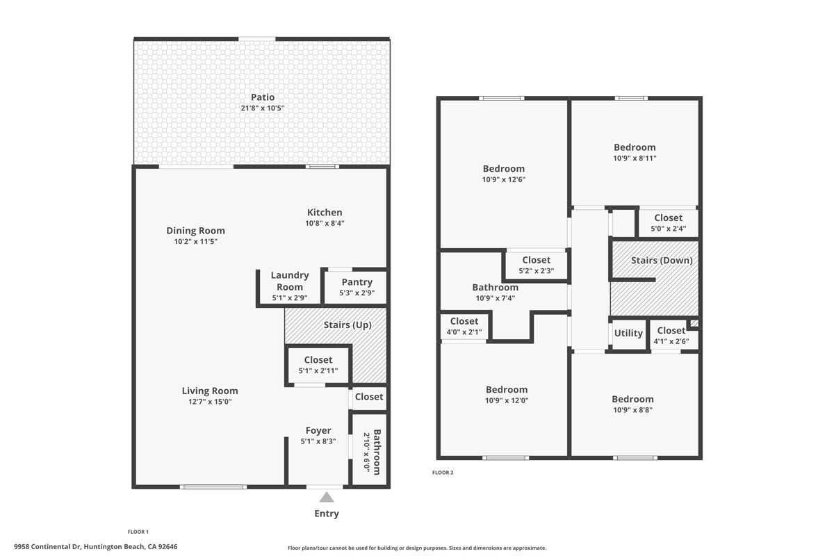
Floor plans for 9958 Continental Drive
Need to take a look at the floor plans to visualize how the home flows and for rough ideas of furniture, decor, and more? No problem! Check them out here!

Take a Walk Through Tour of 9958 Continental Drive, Huntington Beach
Did you know that you can take a virtual walk-through of most of our listings? See 9958 Continental Drive, Huntington Beach just like you would if you came to the property to tour with this helpful 3D video tour experience!
Click Here To View This Home Virtually
Prefer to See the Video Version?
If you like to see our guided and narrated tours of homes, you are in luck! We have one of those for you to enjoy for 9958 Continental Dr, Huntington Beach as well.
More Listings in Huntington Beach
Here are some other current or sold listings of ours in Huntington Beach. Check them out for reference points, an idea of what sells in the area, or for more great properties that are available.
- 1824 Park Street, Huntington Beach
- 6371 Athena Drive, Huntington Beach
- 8561 Pierre Drive, Huntington Beach
- 21372 Pensacola Circle, Huntington Beach
- 8551 Palermo Drive, Huntington Beach
- 8581 Bayonne Drive, Huntington Beach
As always, we’re here to answer any questions you might have. You can drop a comment, give us a call at 949-413-6967, or drop us a line on any of our social media accounts. We are always happy to chat with you about buying, selling, property questions, and more!
